Положение схемы

Back End Assembly

Поз. Артикул Фото Наименование Наличие
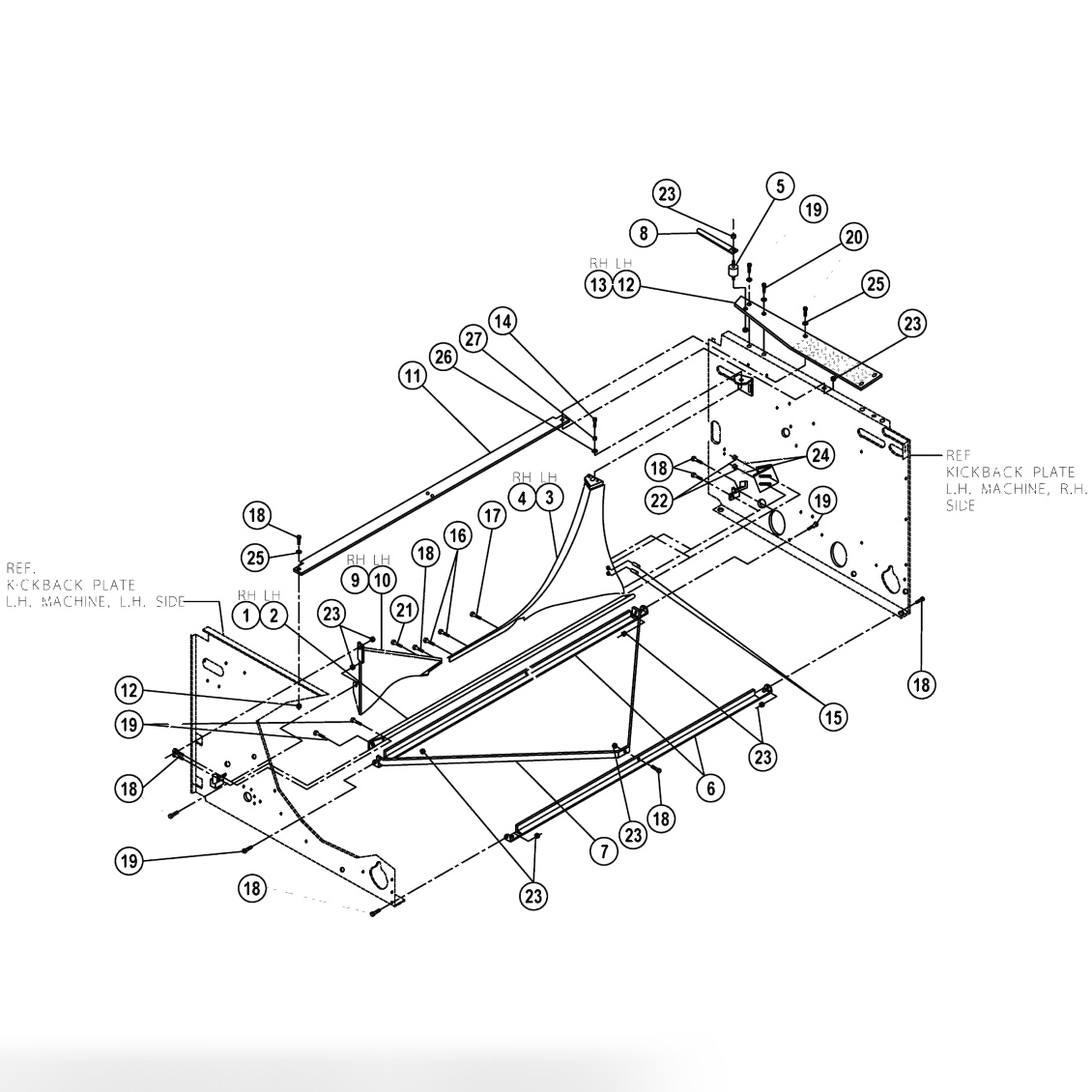
1
000027099
Apron and Mat Assembly Right Hand (EFF. S/N 41898 and UP)
Предзаказ
2
000027100
Apron and Mat Assembly Left Hand (EFF. S/N 41898 and UP)
Предзаказ
3
000027368
Plow & Mat Assembly LG RH for LH Machine
Предзаказ
4
000027372
Plow & Mat Assembly LG LH for RH Machine
Предзаказ
5
000029068
Rubber Mount - Pin Elevator
Предзаказ
6
070001184
Strap Weldment
Предзаказ
7
070001185
Brace
Предзаказ
8
070001195
Pin Seating Rod
Предзаказ
9
070001412
Plow & Mat Assembly SM RH
Предзаказ
10
070002169
Plow & Mat Assembly Sm LH
Предзаказ
11
070007359
Support Bracket
Предзаказ
12
088001120
Even Machine Tread Plate
Предзаказ
13
088001121
Odd Machine Tread Plate
Предзаказ
14
808566160BG
Cap Screw, Button Head, 3/8-24 X 1.00
Предзаказ
15
808849120BG
Cap Screw, Flat Head, 1/4-20 X 0.75
Предзаказ
16
808858120BG
Cap Screw, Flat Head, 5/16-24 X 0.75
Предзаказ
17
808858240BG
Cap Screw, Flat Head, 5/16-24 X 1.50
Предзаказ
18
809857125BG
Cap Screw, Hex Head, 5/16-18 X 0.75
Предзаказ
19
809857165BG
Cap Screw, Hex Head, 5/16-18 X 1.00
Предзаказ
20
809857205BG
Cap Screw, Hex Head, 5/16-18 X 1.25
Предзаказ
21
809858125BG
Cap Screw, Hex Head, 5/16-24 X 0.75
Предзаказ
-
844049002BG
Hex Lock Nut, 1/4-20
Предзаказ
-
844057002BG
Curtain Protection Pad Hex Lock Nut, 5/16-18
Предзаказ
24
948753102BG
Flat Washer 0.28 X 0.63 X 0.06
Предзаказ
25
948761112BG
Flat Washer 0.34 X 0.69 X 0.06
Предзаказ
26
948767132BG
Flat Washer 3/8 X 0.40 X 0.80 X 0.05 SAE
Предзаказ
27
951164002BG
Spring (Split) Lock Washer 3/8
Предзаказ